BLUE BIKE Eden

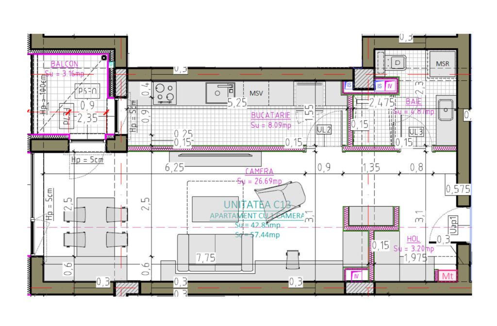
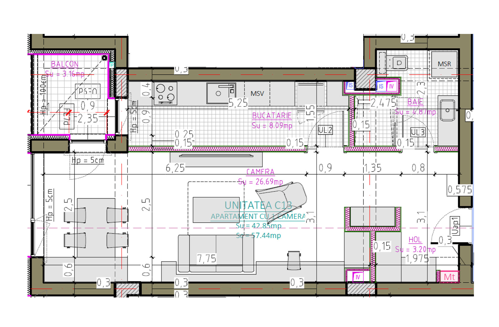
Apartamentul C13

Locuințe premium în Constanța, ideale pentru oameni care investesc în acasă

Plan și compunere

Arhitecți dedicați au investit timp și pasiune în realizarea unui apartament cu finisaje moderne și camere spațioase într-un complex rezidențial în plină dezvoltare. Alege o locuință pe placul tău cu toate dotările de care ai nevoie!

Suprafață construită: 57,44 mp

Suprafață utilă: 42,84 mp

Terasa: 3,16 mp

Specificații tehnice

Living + Dining – 26,69 mp;

Bucătărie – 8,09 mp;

Baie 1 – 4,87 mp;

Balcon – 3,16 mp.

Tip apartament: 1 cameră

Prețul începe de la 1300€/mp construit + TVA

Detalii

Vreau să cumpăr

Prezentare confidențialității

Acest site folosește cookie-uri pentru a-ți putea oferi cea mai bună experiență în utilizare. Informațiile cookie sunt stocate în browser-ul tău și au rolul de a te recunoaște când te întorci pe siteul nostru și de a ajuta echipa noastră să înțeleagă care sunt secțiunile sitului pe care le găsești mai interesante și mai utile.
Pentru mai multe informatii poti consulta Politica de confidentialitate.